Beschreibung der Ausstattung
Das Anwesen verfügt über Kabelanschluss. Internetanbindung: GigaZuhause 1000 Cable mit 1000 MBit/s ist laut vodaphone verfügbar und MagentaZuhause mit 175 MBit/s laut Telekom.
Lage
Gefragte Wohnlage in Richtung Pohlitz-Reißberg.
Südhang mit fantastischem Panoramablick auf Greiz, Erdgeschoss/Hochparterre.
Anschrift: 07973 Greiz, Cloßstraße 6
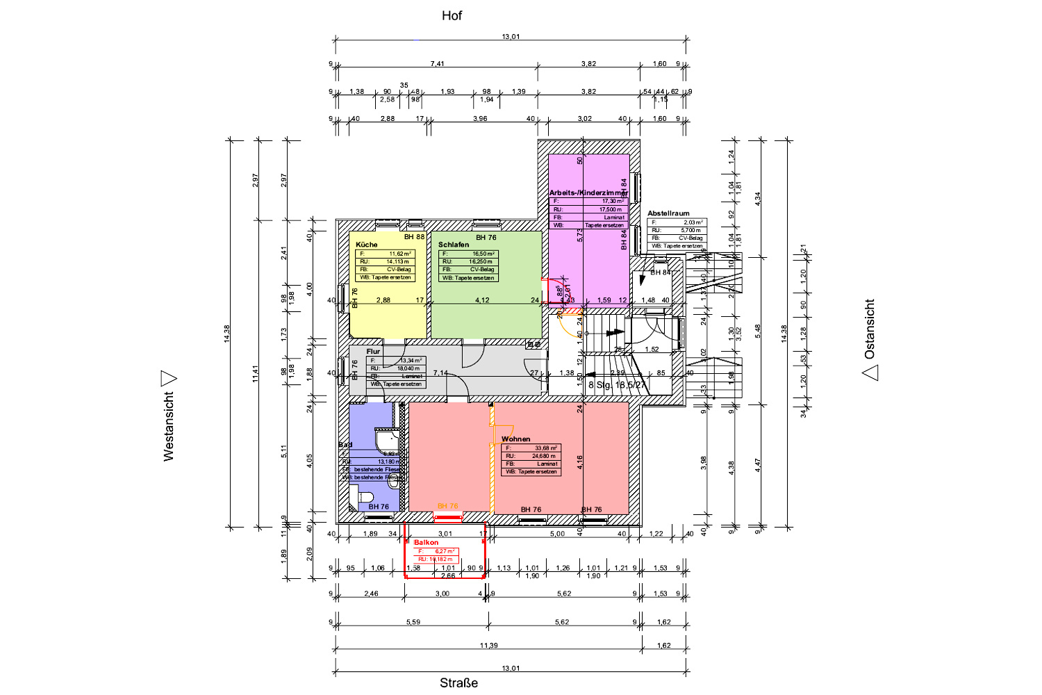
Objektbeschreibung
Hierbei handelt es sich um eine von insgesamt 3 Wohnungen, welche in einem komplett neu sanierten Haus entstehen. Es wurden neue Balkone angebaut, von denen aus Sie einen wunderschönen Blick über die Stadt genießen können. Diese Südhanglage zählte schon immer zu einer der beliebtesten Wohngegenden in Zentrumsnähe.
Die Wohnungen werden dezentral mit modernen Wärmepumpen beheizt, welche im Sommer auch als Klimaanlage zur Kühlung genutzt werden können.
Zur Wohnung gehört ein Abstellraum im Treppenhaus, Mieterkeller sind möglich, weiterhin kann ein PKW-Stellplatz vor dem Haus für mtl. 15 € angemietet werden.
Der Garten hinter dem Haus sowie der Trockenboden stehen allen allen Bewohnern zur Verfügung.
Sonstige Angaben
Geschäftsbedingungen: Alle Angaben nach bestem Wissen bzw. auf Angaben des Eigentümers.
Der Vermittler hat weder Flächenangaben kontrolliert noch eine Wohnflächenberechnung durchgeführt.
Irrtum und Zwischenvermietung vorbehalten.
Dieses Exposee ist eine Vorinformation, als Rechtsgrundlage gilt allein der abgeschlossene Mietvertrag.
